菖蒲町菖蒲 新築一戸建て|久喜市の不動産|センチュリー21カクダイネットワーク

TOPページ >
物件検索 >
不動産情報一覧

菖蒲町菖蒲 新築一戸建ての検索結果一覧

種別で絞り込む 新築一戸建て 中古一戸建て 中古マンション 土地
9件中1〜9件を表示
表示件数 並び順
新築一戸建て

【物件特徴】 ■東武伊勢崎線『花崎』駅徒歩80分 ■クローゼット ■バルコニー

価格 2,480万円 
所在地 埼玉県久喜市菖蒲町菖蒲
交通 東武伊勢崎線 花崎駅 徒歩80分
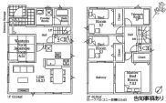
間取り 4LDK
建物面積 97.59u 土地面積 166.37u
築年月 2025年12月 建物構造 一戸建て/木造
30枚  

会員限定 NEW【会員様限定で公開中!】

新築一戸建て

【物件特徴】 ■JR宇都宮線『久喜』駅徒歩89分 ■ウォークインクローゼット ■バルコニー

価格 2,590万円 
所在地 埼玉県久喜市菖蒲町菖蒲
交通 JR東北本線 久喜駅 バス25分停歩10分
間取り 3SLDK
建物面積 112.61u 土地面積 137.44u
築年月 2026年3月 建物構造 一戸建て/木造
14枚  

会員限定 NEW【会員様限定で公開中!】

会員限定 NEW【会員様限定で公開中!】

新築一戸建て

【物件特徴】 ■JR宇都宮線『久喜』駅徒歩89分 ■ウォークインクローゼット ■バルコニー

価格 2,690万円 
所在地 埼玉県久喜市菖蒲町菖蒲
交通 JR東北本線 久喜駅 バス25分停歩10分
間取り 4LDK
建物面積 112.61u 土地面積 137.51u
築年月 2026年3月 建物構造 一戸建て/木造
14枚  
新築一戸建て

【物件特徴】 ■JR宇都宮線『久喜』駅徒歩88分 ■ウォークインクローゼット ■バルコニー

価格 2,880万円 
所在地 埼玉県久喜市菖蒲町菖蒲
交通 JR東北本線 久喜駅 徒歩88分
間取り 4LDK
建物面積 101.44u 土地面積 186.42u
築年月 2025年12月 建物構造 一戸建て/木造
13枚  

会員限定 NEW【会員様限定で公開中!】

会員限定 NEW【会員様限定で公開中!】

表示件数 並び順


LIFULL HOME'S 優良店認定 センチュリー21カクダイネットワーク

TOPICお知らせ

注文建築
内観写真

〒346-0003
埼玉県久喜市久喜中央4丁目9-49

TEL:0120-213-781
FAX:0480-24-1451

営業時間:9:00〜19:00
定休日:水曜日

お客様へ

新築一戸建て 不動産情報はセンチュリー21カクダイネットワークにお任せください!センチュリー21カクダイネットワークでは不動産情報を豊富にご用意しております。 新築戸建て・土地・マンションをお探しの方はぜひセンチュリー21カクダイネットワークまでお問い合わせください。信頼あるスタッフがあなたのマイホーム探しのお手伝いをさせて頂きます。