宮代町西原の分譲住宅一覧|久喜市の不動産|センチュリー21カクダイネットワーク

TOPページ >
物件検索 >
分譲住宅特集一覧 >
宮代町西原の分譲住宅特集一覧
2件中1〜2件を表示
  • 1
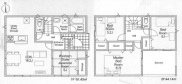
新築一戸建て
価格 2,280万円 
所在地 宮代町西原
交通 東武伊勢崎線 東武動物公園駅 徒歩23分
建物面積 95.57m2 土地面積 140.00m2

【物件特徴】 ■東武伊勢崎線『東武動物公園』駅徒歩23分 ■クローゼット ■バルコニー

新築一戸建て
価格 2,380万円 
所在地 宮代町西原
交通 東武伊勢崎線 東武動物公園駅 徒歩23分
建物面積 95.98m2 土地面積 139.75m2

【物件特徴】 ■東武伊勢崎線『東武動物公園』駅徒歩23分 ■クローゼット ■バルコニー

2件中1〜2件を表示
  • 1
売却査定速報
ふれあいクラブ メンバー募集中!
リースバックについて
  • 物件検索
  • お客様の声
  • イベントギャラリー
  • スタッフ紹介
  • 購入の流れ
久喜エリアでお部屋探し
久喜市のリフォームならカクダイネットワーク
【公式】カクダイグループ
いえとち本舗
デザイナーズハウスtheselect
LIFULL HOME'S(ライフルホームズ)優良店認定

店舗紹介

センチュリー21 カクダイネットワーク

センチュリー21 カクダイネットワーク 〒346-0003
埼玉県久喜市久喜中央4丁目9番49号
TEL:0480-21-6666
FAX:0480-24-1451
フリーダイヤル:0120-21-3781
営業時間:9:00〜19:00
定休日:水曜日

会社概要を見る