| 価格 | 3,699万円値下がり ![]() |
||||
|---|---|---|---|---|---|
| 所在地 | 埼玉県久喜市本町6丁目
この地域周辺の物件を見る |
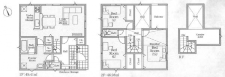
土地面積 | 112.64m² (34.07坪) | 建物面積 | 102.29u |
| 築年月 | 2025年9月築 | 間取り | 3LDK (LDK20.4/洋室8.5/洋室11/洋室5.2) | ||
| 交通 |
JR東北本線 久喜 徒歩15分
東武伊勢崎線 久喜 徒歩15分 東武日光線 幸手 徒歩63分 |
||||
電話をかける(携帯・PHS可)
0120-21-3781
「ホームページを見た」とお伝え下さい。
お問い合わせ番号をお伝えください
RHS-092801-25698
| 特徴 |
|
|---|---|
| セールスコメント | 【物件特徴】 ■JR宇都宮線『久喜』駅徒歩15分 ■クローゼット ■バルコニー |
| 採光面 | 南西 | 構造/階数 | 木造/地上2階建 |
|---|---|---|---|
| 建ぺい率 | 60(%) | 容積率 | 200(%) |
| 駐車場 | 有 | 現況/引渡し | 新築/相談 |
| 土地権利 | 所有権 | 私道負担面積 | - |
| 接道状況 | 接道: 北西 公道 道路幅: 6m | 用途地域 |
準住居地域
|
| セットバック | - | 法令上の制限 | - |
| 地目 | 宅地 | 地勢 | |
| 建築確認番号 | 第25UDIW建01232号 | 都市計画 | 市街化区域 |
| 取引態様 | 仲介 | ||
| 情報更新日 | 2025年12月07日 | 次回更新日 | 2025年12月21日 |
| 小学校区 | 久喜市立本町小学校 (埼玉県久喜市) この学区の他の物件を見る |
中学校区 | 久喜中学校 (埼玉県久喜市) この学区の他の物件を見る |
|---|
電話をかける(携帯・PHS可)
0120-21-3781
「ホームページを見た」とお伝え下さい。
お問い合わせ番号をお伝えください
RHS-092801-25698
| 価格 | 万円 | ||
|---|---|---|---|
| 年利率 | % |
||
| ボーナス払い | 返済年数 | ||
| 頭金 | 直接入力する | 万円 | |

毎月のご返済額 |
ボーナス(×年2回) |
物件価格3,699万円 |

![]() |
![]() |
久喜市本町6丁目
3699万円〜3899万円 |
電話をかける(携帯・PHS可)
0120-21-3781
「ホームページを見た」とお伝え下さい。
お問い合わせ番号をお伝えください
RHS-092801-25698
【物件特徴】
■JR宇都宮線『久喜』駅徒歩15分
■ウォークインクローゼット
■バルコニー